Головна >> Продаж будинків в Одесі та області | Агенція нерухомості Турбо — 200+ пропозицій >> Об'єкт №22392844
В продаже 2-х этажный дом с ремонтом в Лесках на 6 сотках. (№ 22-392-844)
Ціна: 180 000 $
Характеристики
| Ціна: | 180 000 $ |
|---|---|
| № об'єкта: | 22-392-844 |
| Тип: | будинок |
| Поверхів: | 2 |
| Спалень: | 4 |
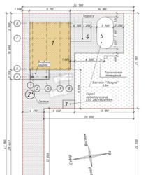
| Площа будинку: | 154 м2 |
| Ділянка: | 6.3 сот |
| басейн: | - |
| газ: | - |
Адреса: Одеська, Комінтернівський, Ліски, Одеська
Продається затишний будинок у престижному районі Одеси - Комінтернівський, в мальовничому селищі Ліски. Будинок знаходиться на ділянці площею 6 соток і має загальну площу 154 квадратних метрів. У будинку 4 просторі спальні, а також велика кухня та затишна вітальня. Будинок складається з двох поверхів, що дозволяє розділити простір на зони відпочинку та робочі. Ціна цього чудового житла - 180 000 доларів США. На території є місце для паркування автомобіля. .Не втрачайте шанс придбати цей прекрасний будинок для вашої сім'ї! Для отримання більш детальної інформації або для організації перегляду, телефонуйте , або пишіть.











