Продам складські приміщення з обладнанням - діючий бізнес СТО (№ 24-100-310)
Ціна: 650 000 $
Адреса: Миколаївська дорога, 124/1, Одеса, Одеська, Пересипський, Пересип
Характеристики
| Ціна: | 650 000 $ |
|---|---|
| № об'єкта: | 24-100-310 |
| Тип: | торгівельні площі, об'єкт сфери послуг, інше |
| Поверх: | 1 / 1 |
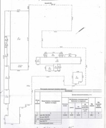
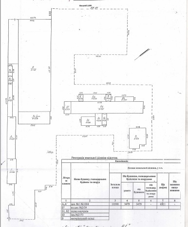
| Площа: | 1631,5 м2 |
| Додатково: | окремий вхід, парковка |
Опис
До Вашої уваги діюий бізнес - станція авто техобслуговування, складські приміщення і споруди зі своїм внутрішнім двром та стоянкою для авто загальною площею 10 390 кв.м.
Бокси для фабування, приміщення для ремонту автомобілів, Бокси для мийки авто, бокси для поліровки, власна котельня, будинок охорони, будиночок для відвідувачів, власні складські приміщення та адміністративні споруди.
Обладнання для ремонту автомобілів (Камера для фарбування Globus, Компресор поршневий 2-х циліндровий AIR PRESS B7000/500 FT 10/HK 1500-500, 1500 л/м, 11 бар, 7,5 кВт, 380 V, 500 л, Італія, Верстак-стелаж (11,7+10,3+5,5), Верстак виробничій (10 одиниць) Візок для інструментів Системи стілажні Ролетні системи Авто-Підʼйомник Стапель платформний Виставкова Фотозона Витяжна вентиляція Відеоспостереження Освітлення Пожежна сигналізація тощо)



























