Продам квартиру-фортецю на Отрадній (№ 212-937-277)
Ціна: 350 000 $
Характеристики
| Ціна: | 350 000 $ |
|---|---|
| № об'єкта: | 212-937-277 |
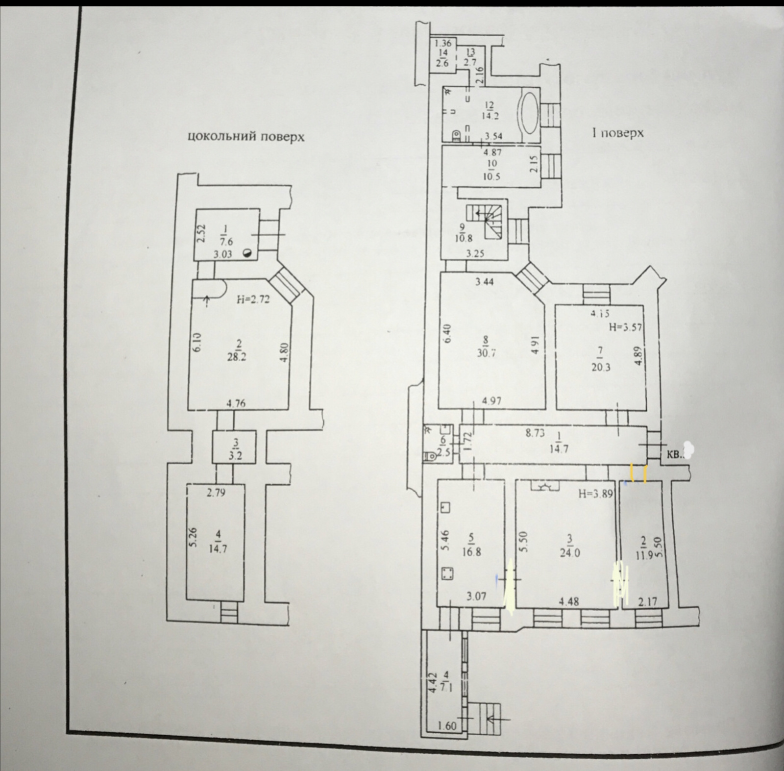
| Кімнат: | 4 розд |
| Поверх: | 1 / 4 |
| Площа: | 220 / 94 / 25 м2 |
| Санвузол: | 3+ сумісний |
| Балкон: | тераса |
Адреса: Одеська, Одеса, Приморський, Отрадная, 7
В історичних місцях ніяк лез історії.
Цей красень - чудової архітектури будинок побудований в кінці 19 століття, належав Софії Волковій, а незадовго до революції його відкупив генерал Брілкін.
Унікалні переходні корпуси-мостики на першому поверсі додали свою нотку в архітектуру будинку, а тепер один з мостиків - це продовження нашої великої квартири.
Як вам історія?
Так от!
Будинок в дуже гарному стані, з товстезними міцними стінами. Квартира на першому поверсі, загальною площею 222м2 має три виходи і великий цокольний поверх. Дизайнерському ремонту в квартирі 5 років, три просторі спальні, одна з яких майстер спальня. Також є бібліотека, гардеробна, кабінет. А великий цокольний поверх має спортзал і є місце і виведені комунікації для сауни та басейну.
Якщо я вас ще більше зацікавила, тоді телефонуйте















