Головна >> Продаж квартир в Одесі | Агенція нерухомості Турбо — 1000+ пропозицій >> Ріелтор Дзюбенко Вікторія Владиславівна >> Об'єкт №212952431
Продам 4-кімнатну квартиру на Таїрова (№ 212-952-431)
Ціна: 45 000 $
Характеристики
| Ціна: | 45 000 $ |
|---|---|
| № об'єкта: | 212-952-431 |
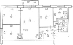
| Кімнат: | 4 суміж |
| Поверх: | 3 / 5 |
| Площа: | 64 / 35 / 18 м2 |
| Санвузол: | 1 сумісний |
| Балкон: | балкон |
Адреса: Одеська, Одеса, Київський, Небесной Сотни, 13
Продам 4-кімнатну квартиру на Таїрова. Зроблено перепланування у три кімнати та простору кухню-їдальню. Хороший житловий стан. Середній поверх















