Пентхаус у ЖК Еталон (№ 213-037-306)
Ціна: 54 900 $
Характеристики
| Ціна: | 54 900 $ |
|---|---|
| № об'єкта: | 213-037-306 |
| Кімнат: | 4 розд |
| Поверх: | 17 / 17 |
| Площа: | 110 / 80.1 / 24 м2 |
| Санвузол: | 2 сумісний |
| Балкон: | тераса |
| Проект будинку: | Здана Новобудова |
Адреса: Одеська, Одеса, Хаджибейський, Маршала Маліновського, 16/б
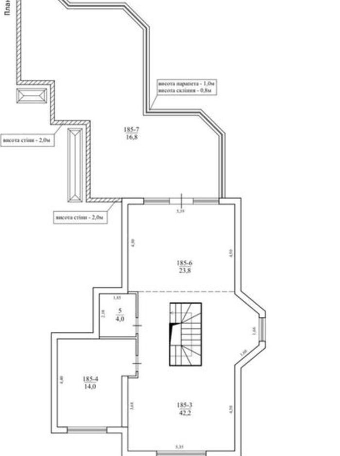
Продається простора 2-рівнева квартира (пентхаус) у ЖК 'Еталон'. Будинок бетонно-монолітний, з видом на місто, розташований на 17-му поверсі з виходом на власну терасу на 18-му поверсі. Загальна площа квартири становить 110 м², тераси – 47 м². Закрита територія з паркінгом забезпечує комфорт та безпеку.Планування:
Перший рівень (17 поверх):Вільне планування: площа 23,4 м².Зони: коридор, гардеробна, гостьовий санвузол, гостьова або дитяча кімната.Сходи: на другий рівень
Другий рівень (18 поверх):Кухня-студія: площа 66 м² з виходом на терасу.Можливості: встановлення каміну та вентиляції.Спальня: площа 14 м².Санвузол: площа 4 м²
Тераса: площа 47 м².Квартира двостороння: спальна зона на схід, тераса на захід. Вікна стандартні та панорамні, використано 6-камерний профіль та двокамерний склопакет з аргоном та енергоефективним напиленням. Квартира під чистову обробку: гіпсова штукатурка та стяжка. У подарунок додаються розроблений дизайн та візуалізації ремонту.Інфраструктура:Близькість: відділення банку, банкомат, школа, дитячий садок, супермаркет, ТРЦ, аптека, відділення пошти, зупинка транспорту, лікарня, поліклініка, ринок, магазин, кіоск, бювет, парк, зелена зона.
чудова можливість придбати ексклюзивний пентхаус у сучасному комплексі! Звертайтесь для отримання додаткової інформації та домовленостей.










