Головна >> Продаж квартир в Одесі | Агенція нерухомості Турбо — 1000+ пропозицій >> Об'єкт №213043854
Затишна квартира (№ 213-043-854)
Ціна: 28 000 $
Характеристики
| Ціна: | 28 000 $ |
|---|---|
| № об'єкта: | 213-043-854 |
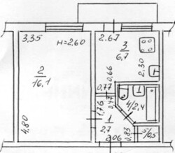
| Кімнат: | 1 розд |
| Поверх: | 8 / 9 |
| Площа: | 29 / 16,1 / 6 м2 |
| Санвузол: | 1 сумісний |
| Балкон: | балкон |
| Проект будинку: | Чешка |
Адреса: Одеська, Одеса, Приморський, Мачтовая, 22
Продається затишна однокімнатна квартира на восьмому поверсі. Квартира у житловому стані, з роздільним плануванням та суміжним санвузлом, що забезпечує зручність і комфорт.
Встановлені холодильник, плита та пральна машина. Для вашого відпочинку є телевізор. Балкон-лоджія додає простору і затишку. Центральне опалення гарантує тепло в холодну пору року.
Територія будинку має гарну інфраструктуру: поруч аптеки, лікарні, дитячі садки, майданчики та зупинки транспорту. Це ідеальне житло як для проживання, так і для інвестицій.
Не втрачайте можливість стати власником цієї чудової квартири! Телефонуйте зараз для перегляду.






