Продається двокімнатна квартира в ЖК 'Скай Сіті'! Від будівельників!  (№ 213-047-688)

Продається двокімнатна квартира в ЖК 'Скай Сіті'! Від будівельників! фото 1
Продається двокімнатна квартира в ЖК 'Скай Сіті'! Від будівельників! фото 1
Продається двокімнатна квартира в ЖК 'Скай Сіті'! Від будівельників! фото 2
Продається двокімнатна квартира в ЖК 'Скай Сіті'! Від будівельників! фото 3

Ціна: 63 000 $

Характеристики

Ціна: 63 000 $
№ об'єкта: 213-047-688
Кімнат: 2
Поверх: 13 / 25
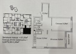
Площа: 70 / 34 / 12 м2

Адреса: Одеська, Одеса, Київський, Варненська, 27А/2

Продається двокімнатна квартира в ЖК 'Скай Сіті'. Будинок зданий, секція 4, розташована на 13-му поверсі. Загальна площа квартири становить 69,90 кв.м. Тип угоди – переуступка, яку власник готовий оплатити. Будинок з монолітними стінами, житловий фонд від 2021 року. Клас житла – комфорт, планування роздільне, санвузол роздільний, опалення від власної котельні.
Квартира не мебльована, але підключені всі необхідні комунікації: кабельне, цифрове ТБ, швидкісний інтернет, вивіз відходів, центральна каналізація, центральний водопровід, електрика, асфальтована дорога.
Інфраструктура в радіусі 500 метрів включає школи, аптеки, лікарні, поліклініки, магазини, кіоски, дитячі садки, парки, зелені зони, супермаркети, ТРЦ, дитячі майданчики, зупинки транспорту, відділення пошти, відділення банків, банкомати, бювети, кінотеатри, театри, ресторани та кафе.
Це чудова можливість придбати комфортне житло в сучасному житловому комплексі. Телефонуйте для перегляду та отримання додаткової інформації!

Об'єкт на карті