Простора квартира у ЖК Одеські традиціі (№ 213-049-634)
Ціна: 34 900 $
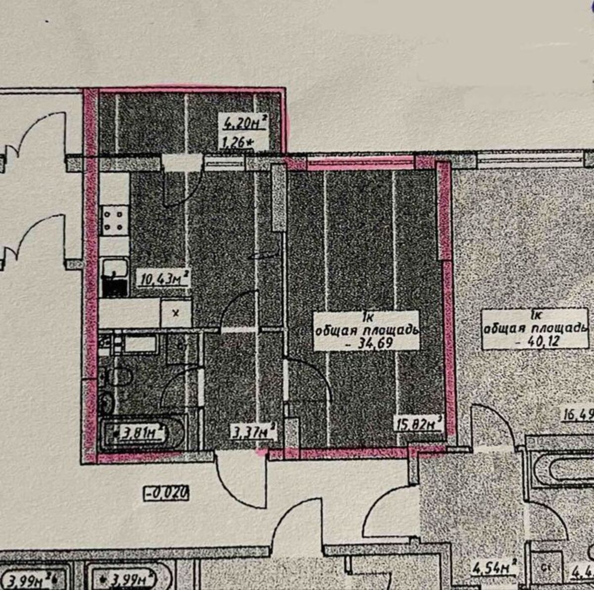
Характеристики
| Ціна: | 34 900 $ |
|---|---|
| № об'єкта: | 213-049-634 |
| Кімнат: | 1 |
| Поверх: | 10 / 17 |
| Площа: | 36 / 15.82 / 11 м2 |
| Санвузол: | 1 сумісний |
| Балкон: | балкон |
| Проект будинку: | Здана Новобудова |
Адреса: Одеська, Одеса, Пересипський, Віталія Нестеренка, 1/б
Продається однокімнатна квартира в ЖК 'Одесские традиции'. Квартира з ремонтом, готова до проживання.
Житловий комплекс 'Одесские традиции' - новобудова з комфортним класом житла. Будинок побудований з газоблоків і має централізоване опалення. У квартирі зроблено євроремонт, планування роздільне. В наявності балкон, лоджія та ванна.Переваги ЖК 'Одесские традиции':
Зручне розташування поряд з залізничною станцією, центром міста та зупинками транспорту.
Розвинена інфраструктура: аптеки, ресторани, кафе, лікарні, поліклініки, школи, дитячі садки, ринки, магазини, кіоски, парки, зелені зони, відділення банків та банкомати, дитячі майданчики, супермаркети, ТРЦ, автовокзали, відділення пошти.
Не втрачайте можливість придбати цю затишну квартиру в ЖК 'Одесские традиции'! Для додаткової інформації або огляду квартири телефонуйте зараз.










