Головна >> Продаж квартир в Одесі | Агенція нерухомості Турбо — 1000+ пропозицій >> Об'єкт №213100997
Продається простора однокімнатна квартира у будинку на Мещанській, центр міста! (№ 213-100-997)
Ціна: 80 000 $
Заславського, 36, Одеса, Одеська, Приморський
Характеристики
| Ціна: | 80 000 $ |
|---|---|
| № об'єкта: | 213-100-997 |
| Кімнат: | 1 |
| Поверх: | 2 / 9 |
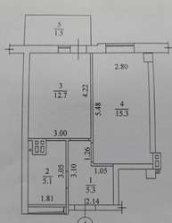
| Площа: | 40 / - / 19 м2 |
| Санвузол: | 1 сумісний |
| Балкон: | балкон |
| Проект будинку: | Здана Новобудова |
Опис
Продається простора однокімнатна квартира у будинку на Мещанській, розташованому в історичному центрі міста з чудовою транспортною розв’язкою. Загальна площа квартири — 40 м², плюс 5,5 м² балкону. Житло вирізняється стильним ремонтом, якісними меблями та дорогою технікою.
Будинок має вишукану архітектуру з французькими вікнами та мармуровими сходовими маршами, продумане планування квартир і високу якість будівництва. Територія комплексу знаходиться під цілодобовим відеоспостереженням, що гарантує безпеку і комфорт.
Ця квартира є ідеальним вибором для тих, хто цінує стиль, зручність та проживання в центрі міста. Не зволікайте, звертайтеся для організації перегляду та отримання додаткової інформації!














