Трикімнатна квартира на Таірова (№ 213-147-714)
Ціна: 50 000 $
Характеристики
| Ціна: | 50 000 $ |
|---|---|
| № об'єкта: | 213-147-714 |
| Кімнат: | 3 |
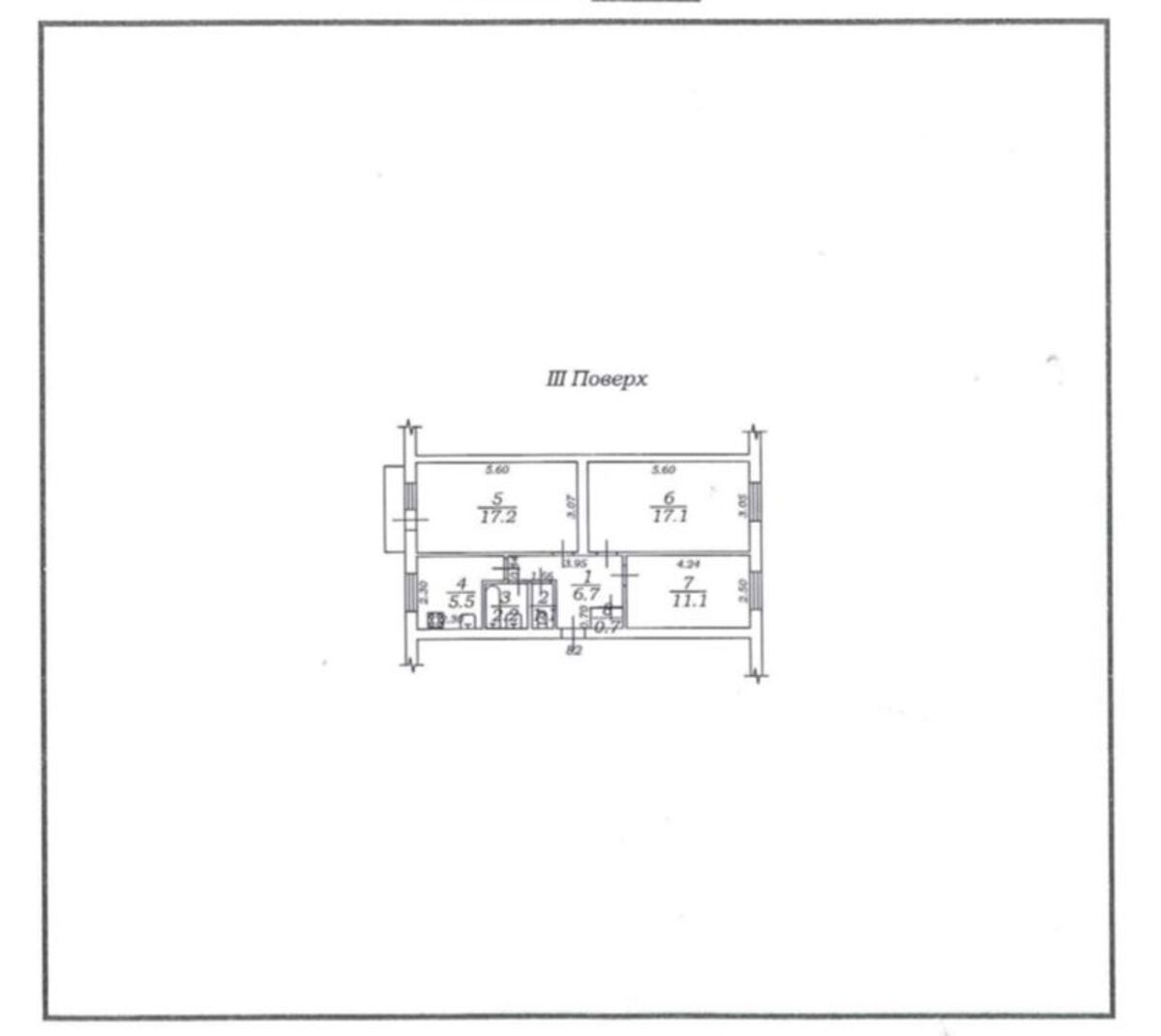
| Поверх: | 3 / 5 |
| Площа: | 63 / 45.4 / 5 м2 |
| Санвузол: | 1 роздільний |
| Балкон: | балкон |
| Проект будинку: | Хрущевка |
Адреса: Одеська, Одеса, Київський, Небесноі Сотні, 33
Продається трикімнатна квартира на 3-му поверсі панельного будинку типу «хрущовка» — не кутова, з оптимальним плануванням і чудовим потенціалом для втілення дизайнерських рішень.
Підготовлена під ремонт: повністю демонтовані старі покриття, вивезено будівельне сміття, стіни та стелі ідеально вирівняні. У вартість входять нові 6-камерні металопластикові вікна. Світлі роздільні кімнати на обидві сторони будинку — простір, наповнений світлом і тишею. На підлозі по всій квартирі, включаючи прихожу, — натуральний паркет. Газифікована квартира з лічильником, у будинку встановлено загальний теплолічильник.
Власне ОСББ з активним управлінням, охайний під’їзд з регулярним прибиранням, прибудинкова територія з мангалом і дитячим майданчиком позаду будинку.
Ідеальна локація: поруч дитячий садок, ліцей №63, ТРЦ «Сіті Центр», магазини, аптеки, банки, зупинка громадського транспорту — усе в пішій доступності.




















