Простора 2-кімнатна квартира з кухнею-студією в ЖК 'Акварель-7  (№ 213-222-569)

Простора 2-кімнатна квартира з кухнею-студією в ЖК 'Акварель-7 фото 1
Простора 2-кімнатна квартира з кухнею-студією в ЖК 'Акварель-7 фото 1
Простора 2-кімнатна квартира з кухнею-студією в ЖК 'Акварель-7 фото 2
Простора 2-кімнатна квартира з кухнею-студією в ЖК 'Акварель-7 фото 3

Ціна: 56 800 $

Характеристики

Ціна: 56 800 $
№ об'єкта: 213-222-569
Кімнат: 2
Поверх: 4 / 5
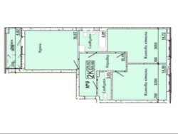
Площа: 71 / 56.2 / 17 м2
Санвузол: 2 сумісний
Балкон: лоджія
Проект будинку: Здана Новобудова

Адреса: Одеська, Одеса, Хаджибейський, Слободская, 56

Продається найбільша планування в будинку — 71,3 м² комфорту та простору! 4 поверх, 3 секція, будинок зданий, ліфт працює.Переваги квартири:2 окремі кімнати + кухня-студія + лоджія.Двостороннє планування — світло та затишок протягом усього дня.Кладова на поверсі — 4,5 м² додаткового простору.Купувалась для себе — якісна основа для вашого ідеального ремонту.Ціна — лише 800 у.о./м²!Новобудова 2021 року.Комфорт-клас.Стіни — газоблок.Централізоване опалення.Після будівельників — можливість реалізувати власний дизайн. Інфраструктура: У пішій доступності — все необхідне для комфортного життя:Дитячий садок, школа, ринок, магазини.Аптека, лікарня, поліклініка.Парк, зелена зона, зупинка транспорту.Відділення банку, банкомат
Тип угоди: Переуступка — швидке оформлення!Не втрачайте шанс придбати ідеальну квартиру для життя або інвестиції в одному з найзеленіших районів Одеси!
Телефонуйте вже зараз — така пропозиція довго не затримається!

Об'єкт на карті