квартира в ЖК «Апельсин» (№ 213-231-848)
Ціна: 65 000 $
Середнєфонтанська, 35, Одеса, Одеська, Приморський
Характеристики
| Ціна: | 65 000 $ |
|---|---|
| № об'єкта: | 213-231-848 |
| Кімнат: | 2 |
| Поверх: | 20 / 24 |
| Площа: | 44 / - / 10 м2 |
| Санвузол: | 1 сумісний |
| Балкон: | балкон |
| Проект будинку: | Здана Новобудова |
Опис
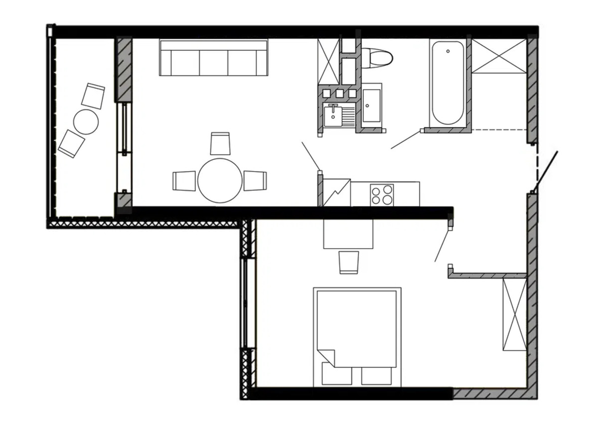
Продається 2-кімнатна квартира (перепланована з 1-кімнатної), 44 м²
Вид на центр міста з 20-го поверху – панорамні світанки та вечірні вогні прямо з вашого балкона.Сучасний ЖК 2018 року з підземним паркінгом, охороною та консьєржем.
Висота стелі 2,90 м – простір та відчуття свободи.Ідеальне планування – комфортне для життя та вигідне для інвестиції.Меблі та техніка вже є – заїжджай і живи!
Холодильник, варильна панель, мікрохвильова піч.Швидкісний інтернет, Wi-Fi, телевізор.Кондиціонер, ванна, балкон + лоджія. Інвестиційна вигода:
Довгострокова оренда: 12–14 тис. грн/міс.Короткострокова оренда влітку: від 40 тис. грн/міс. Це квартира, яка поєднує стиль, комфорт та прибутковість. Вона стане вашим затишним домом або вигідним активом.Звертайтеся!














