Дворівнева квартира в історичному центрі Одеси (№ 213-306-191)
Ціна: 370 000 $
Малая Арнаутська/Леонтовича, Одеса, Одеська, Приморський
Характеристики
| Ціна: | 370 000 $ |
|---|---|
| № об'єкта: | 213-306-191 |
| Кімнат: | 5 |
| Поверх: | 3 / 3 |
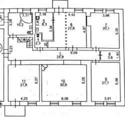
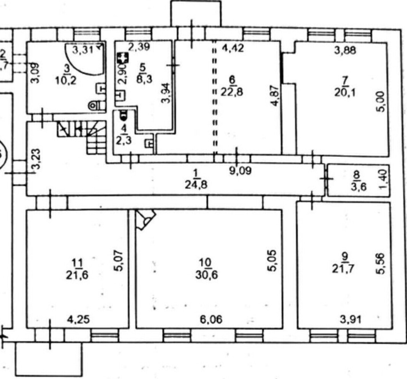
| Площа: | 350 / 245 / 10 м2 |
| Санвузол: | 2 сумісний |
| Балкон: | балкон |
| Проект будинку: | Старий Фонд |
Опис
Продається унікальнА дворівнева квартира — Мала Арнаутська / Белінського, Приморський район Одеси.
Загальна площа: 338 м².Історичний будинок — пам’ятка архітектури.Простора дворівнева квартира з високими стелями (3 м).
Перший рівень — 169 м²: 5 кімнат, кухня, два санвузли, кладова, два балкони.Другий рівень — 180 м² (за фактом), відкрите планування під оздоблення.
Паркетні підлоги, італійські двері, індивідуальне електричне опалення (котел).Два санвузли, джакузі.Двостороння — вихід у тихий двір та на вул. Мала Арнаутська.
Квартира сонячна, простора, з можливістю індивідуального перепланування. Будинок та інфраструктура:Класичний історичний фасад, перекрита новий дах.
Лише 3 сусіди на 3 поверхи — тиха та респектабельна парадна.Комерційний вхід, перед будинком — парковочний карман.Парк Шевченка — 5 хвилин пішки, море — 10–15 хвилин.Поруч банки, аптеки, супермаркети, ресторани, театр, ринок, залізничний вокзал.
Це ексклюзивна пропозиція для тих, хто цінує історичну архітектуру, простір та престижний район Одеси.
Квартира готова до життя та реалізації дизайнерських рішень — заходь і створюй свій простір!


















